
【臨江花園】浪漫奶油輕法式,暖暖的色清新的調,好米!好米!
去感受吧
去感受微風、晨曦和朝陽
去感受希望
去觸摸
去觸摸真實的生活
作品前言 / FOREWORD
我們的業主是一對熱情開朗的九零后小夫妻,企業職員,向往溫暖又浪漫的生活,家里還有兩只貓咪。父母不在杭州,所以日常就是“兩人兩喵”的休閑居家模式。
合計裝修的時候兩人還在備婚階段,甜蜜非凡,他們希望設計師能打造一個溫馨的奶油法式小窩,同時保留三房,保證收納并兼顧寵物需求(預留貓砂盆等寵物設施)。


全屋色調采用溫馨的米色加上清新奶綠色輔助,精致的石膏線條助力打造一個靈動的法式空間。陽臺的花磚、衛生間干區的羽毛磚,也都和整體空間呼應。窗簾選用的是復古絨布材質,家具上搭配羊羔絨模塊沙發,弧形玻璃茶幾,以及絨面單人沙發,讓客廳鮮活有趣、柔軟可親。

DESIGN
設計師有話說
“我一直都覺得,做設計最開心的事,就是能遇到各路形形色色可愛的人,和他們交流,去觸摸、感受他們真實的生活。這個家同樣如此,兩位主人都是非常的可愛和有趣,所以我覺得他們生活的空間也應該是貼合主人自身的氣質,要柔軟親和同時不呆板,能讓人忍不住去探索...
質感這東西并不是用高昂的材質堆出來的,簡單的材料也能打造出好的落地效果。設計同生活一樣,你用心去打磨好每一個細節了,格調自然就出來了。”

地址 | 臨江花園
城市 | 中國 杭州
戶型 | 三室兩廳
面積 | 109㎡
風格 | 奶油法式
設計施工 | 浙江南鴻裝飾
原始戶型圖 ▼

這個家的戶型比較方正,但是客餐廳狹長,加上房子在一樓,所以采光會差一點。另外,三房除了主臥以外的兩個房間都偏小。
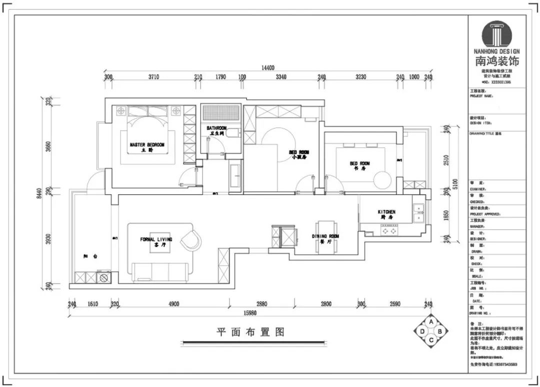
平面設計圖 ▼

設計說明:
將原本過道的空間借給兩個偏小的臥室,擴大房間面積;狹長的公區域用了很多圓弧元素和精細線條來弱化原本生硬的結構;餐廳使用現代感更強的線性燈設計,燈光氛圍比普通的射燈更柔和明亮。
作品詳解 / DETAILS
玄關 <<
Hallway

進門右側是一組到頂的白色玄關柜,既做收納也是與餐廳間的視覺隔擋,保護隱私。正對的墻面稍微做了色塊的造型,不讓空間單調。白而暖的光從柜子一路延伸至里側餐廳,細膩地打造光影層次。

米色波浪紋外輪廓的落地鏡是一件妙品,本身就是時尚的裝飾,又具備方便主人整理儀容的功能,更是玄關至客廳間一種巧妙、無形的過渡。
客廳 <<
Living Room

客廳墻面用米白和奶綠色搭配,兩側背景墻都有石膏線裝飾,增添法式的精致。陽臺與客廳連通,擴大視野和采光。

溫和、清新、治愈,是室內色彩和家具符號所共同傳遞出的感官信息。羊羔絨模塊沙發不動聲色注入柔軟因素,兩側無論是原木柜還是落地燈,都有著活潑可愛的造型,讓居住心情瞬間變得輕松愉悅。

客廳側邊的儲物區域結合了貓柜和杯盞收納,簡潔卻是非常實用。視覺自客廳至玄關餐廳有一個很好的延伸和自然過渡,干凈的底色描摹出小確幸的模樣。



在空間的布置上盡量克制地用色用料,在保證生活獲得實用的基礎上,為居者保留簡單的純粹。

客廳與陽臺之間的門洞做了柔和的拱形,陽光被最大限度地引進來,帶來更加明凈敞亮的空間體驗。

住宅舍棄了中央空調和無主燈設計,轉而把關注點更多地放在裝飾線條和軟裝陳設之上,在舍與得之間獲取恰當的平衡,為的是呈現最佳設計效果。
餐廳 <<
Dining Room

餐廳頂面拉出燈線,加上一盞主燈,解決因戶型狹長而采光不足的問題。半墻的設計讓餐廳的韻味與客廳又有了細微的差別,圓潤的餐桌椅讓空間時尚之中又帶著十足的溫馨。

冰箱植入過道,為廚房騰出空間,干凈利落的氛圍讓人舒心。
陽臺 <<
Balcony

陽臺做功能考量,布置為日常的洗衣區,洗衣機烘干機疊放縮短家務動線,花磚與貓貓圖案的布簾增加更多的生活情趣。
臥室 <<
Bedroom




臥室的裝飾元素與公區域一脈相通,寥寥幾筆便讓色與形相融、景與情相通,細膩地鋪就一室安心。目光所及,盡得優雅與閑適。
衛生間 <<
Bathroom

免費
免費申請戶型規劃
專屬設計師免費1對1全程服務
已經有3757人申請
24小時免費咨詢電話
400-8800-618
你家預算
108080元