
奶fufu的210㎡大平層,甜蜜直沁入心扉!

項目信息
/
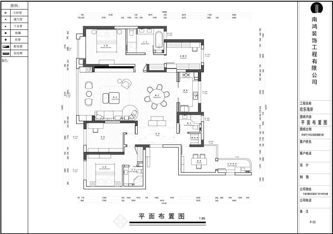
地址:歡樂海岸
城市:中國 寧波
戶型:四室兩廳
面積:210㎡
風格:現代風格
設計施工:浙江南鴻裝飾
本案是210方精裝房的改造項目。女業主是一位時尚達人,對潮流感知敏銳,品味和眼光高,涉及到新家的種種裝修細節時自然也毫不含糊。精裝房的樣板式裝修不甚討喜,所以最后決定改造為更符合潮流的簡約現代風格,并以業主喜愛的奶油白色為主基調。


改造后的空間包裹著溫潤的色澤,舒適愉悅的情緒在全屋流淌。
光與影、空與實得到自然融合,各種親膚的材質予人貼心細膩的照顧,讓家變成了可以自由投射靈性與情感的場域。


空間整體的軟裝設計低調而優雅,溫柔地表現著現代風的華彩。大理石、金屬、巖板、格柵等增添精致,助力打造富有藝術感的品質家裝。
#戶型設計

玄關
Hallway

入戶領域大而開敞,設計打造了白色柜體用作視線遮擋,構出正式的門廳,再輔以一定的藝術表達,簡單利落地鋪敘高級氣質,并予人生動有趣的照面。
客廳
Living Room
柔美的奶油色空間,甜甜的,仿佛有一股撲面而來的奶香味道~


客廳采光良好,布藝的沙發和羊毛地毯組合,生出淡淡的慵懶感。陽臺用單椅和小圓桌打造休閑區域,讓偶爾的閑暇成為美妙的享受。
空間用不多的家具打造極簡的格調,寬闊的場域很好地包容多種情景需求,自由自在而不受拘束,這或許正是主人心中最理想的生活狀態。




當人的精神足夠自由時,納入眼中的,便不再是簡單的物象美,更多的是生命、情感與空間的共振。設計以“空”反襯境界之“實”,在形態、色彩和材質三者的諧和間,賦予居室無窮的意趣。
餐廳
Dining Room


明亮大方的餐廳區域,藝術美學浸潤在各個角落,空間消弭了所有隔閡,顯得通透、柔和而溫潤。
臥室
Bedroom

主臥是包含衛浴與衣帽間在內的大套房,睡眠區做深咖色硬包背景,延續整體簡約的基調。設計順應人居舒適感而作,照進室內的光化身一支妙筆,勾勒出層層質感。


簡凈但精致的衣帽間同樣能讓人印象深刻,就像是直接從家裝雜志上拓印下來的,極簡的線條中滲透出美妙的輕盈。

次臥主要用深深淺淺不同飽和度的藍搭建空間,層次遞進,相當清爽。
衛生間
Bathroom

次衛空間基調較深,大理石和原木結合的長臺盆柜美觀大方,又能提供充足的儲物區域。

主衛空間則由白色主導,更加放大了寬闊的視感。酒店式分離布局一體打造,兼具品質感與功能性。
免費
免費申請戶型規劃
專屬設計師免費1對1全程服務
已經有3756人申請
24小時免費咨詢電話
400-8800-618
你家預算
108080元