
【中海望廬】平衡·歸序
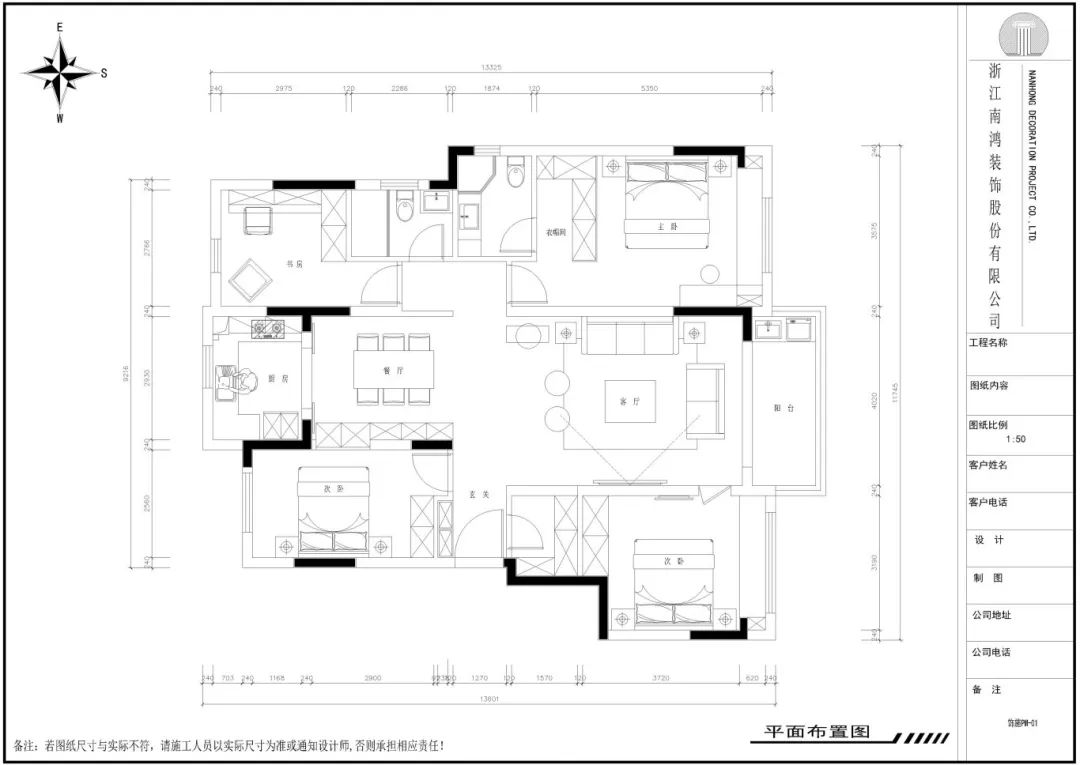
項目信息 PROJECT INFORMATION 地址/ 中海望廬 城市/ 中國 杭州 戶型/ 四室兩廳 面積/ 139㎡ 風格/ 現代 設計施工/ 浙江南鴻裝飾 作品前言. ABOUT HOME 本案這套精裝房是業主買給父母居住,現場基底顏色比較深,灰色、黑色所占比重較大,為了平衡整體視覺,設計師在背景硬包、墻布、沙發等色調選擇上都取了淺色,同時援引大量自然肌理,注入木的溫潤,給現代風利落灑脫的基底摻進了更多的溫馨感。 戶型方案. LAYOUT DESIGN 實景呈現. CASE APPRECIATION 玄關 // 入戶走廊以恰到好處的空間尺度和規整的功能設計,讓回家這件小事變得非常有儀式感。 客廳 // 客廳依靠直板的線條、豐富的材質營造清爽利落又有層次的現代感,設計整體以深淺色相調和,無主燈下“見光不見燈”的明暗對比,在現代風的空間里更是塑造氛圍感的利器。 家是內心世界的投射,并不能被風格所完全定義,簡約的畫布之上,有木、石、布、皮等多種材質繪出的軌跡,碰撞出獨屬于這個家的沉穩氣質。 沙發背景墻組合木飾面、格柵、硬包與幾何感壁飾,形塑一方簡約大氣的端景;電視背景則以中正+懸浮感的結構,豐富空間展示與收納的功能。 考慮到業主的品酒興趣,在沙發一側打造了吧臺休閑區,簡潔黑白呈現利落感,立面連接開放式層架酒柜,收藏酒杯與取用酒水也十分方便。 吧臺區既能提升空間的利用率,又增強了必要的儀式感和分界感,與客餐的緊密聯動,塑出一個無比自由的互動空間,朋友、家人聚會于此,感受溫情和愜意。 餐廳 // 餐廳的美感,源自現代風格分寸適宜的設計,材質、光線、色彩之間協調而平衡的搭配,展現優雅精致的生活品味。 餐廳靠墻設立水吧區,電器高柜為廚房釋放了空間,水吧與餐邊柜的組合構成功能實用的有機整體,而燈帶和玻璃的適時搭襯,也讓區域流露出光透感,交織而成精致的家景。 臥室 // 主臥充盈著溫潤素雅的質地,寬大的飄窗區鋪設悠閑感十足的臥榻,承載光影流轉的暖煦時光。 直立的硬包線條適配木作紋理,讓墻面的轉折更加流暢,柔和的淺色也在一定程度上中和了材質的冷硬,使空間變得自然溫潤。 次臥同樣舍棄了多余的修飾,雅致現代風的床品床頭柜展露著簡約大氣的格調。 書房 // 書房裝飾做了極致的簡化,保留最基礎的功能,目之所及皆為大自然的舒適底色。






















免費
免費申請戶型規劃
專屬設計師免費1對1全程服務
已經有3757人申請
24小時免費咨詢電話
400-8800-618
你家預算
108080元