
10套現代簡約風格案例集錦 | 經典,永不過時
都市忙碌的生活,讓現代人更向往寧靜的氛圍和樸素的事物?,F代簡約風格外形簡潔,功能實用,氛圍舒適,無怪乎會成為家裝界的主流之選。
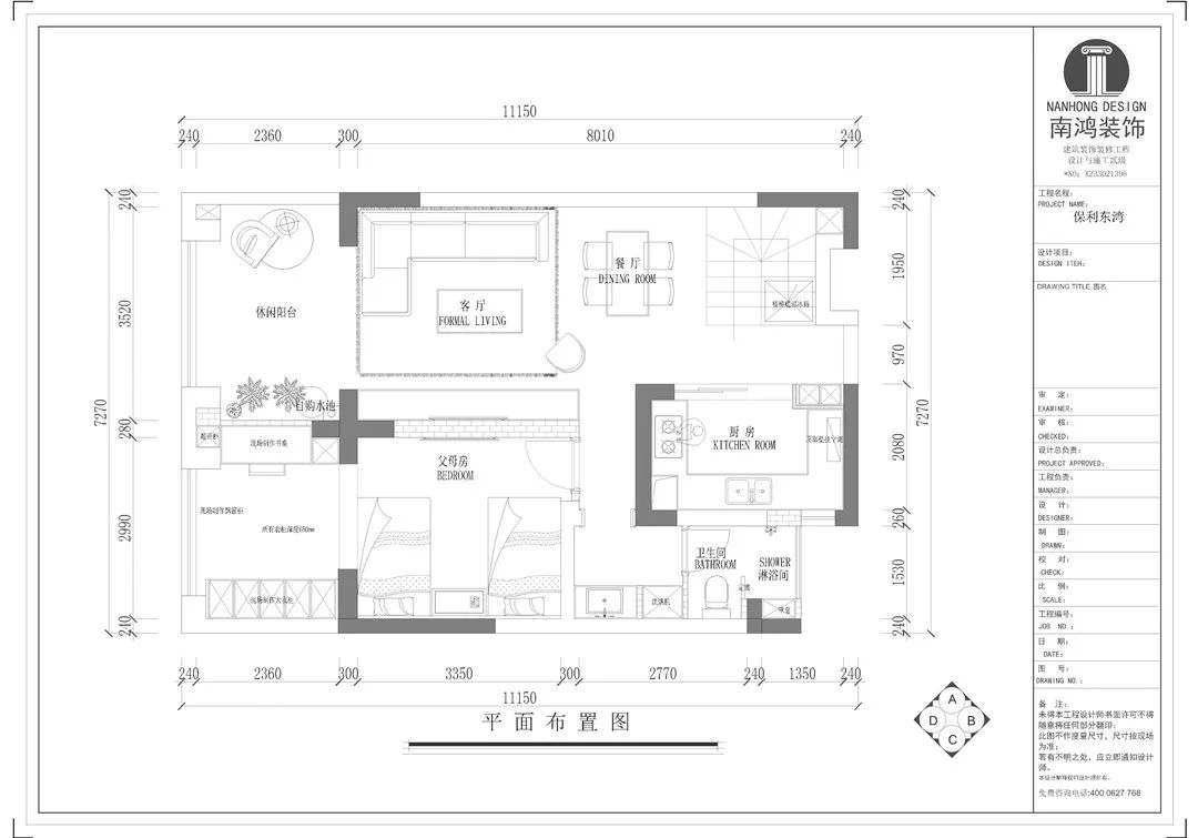
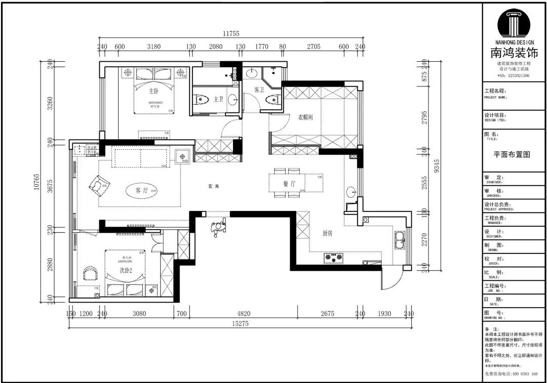
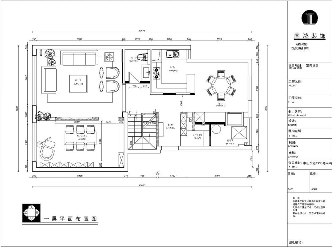
然而簡約不意味著簡單,不注重細節、質感的簡約風非常容易淪為出租屋的模樣,這其中的關鍵在于,保持簡潔造型的同時,更要關注空間裝飾細節的處理。 本期就給大家分享10套簡約風的案例,有需要的小伙伴可以拿去參考哦~ No.1 地址/保利東灣 面積/150㎡ 戶型/LOFT 套餐類型/1199 戶型方案: 設計亮點: ①室內各個陽臺都得到妥善設計,提升戶型利用率。 ②全屋使用白色、原木色、奶茶色等顏色,保持純凈樸素的視感。 ③樓梯加入踏步燈和木扶手,增強設計感及安全性。 ④各種隱藏光源的設計,使家的溫馨感更加濃厚。 No.2 地址/時代濱江悅 面積/117㎡ 戶型/三室兩廳 套餐類型/1399 戶型方案: 設計亮點: ①調整入戶門廳,使公區域整體連貫,動線更加自由。 ②添加獨立衣帽間,擴充全屋儲物量。 ③以耐看的高級灰作為主基調,石材和木作和諧相融,呈現大氣時尚感。 詳情可見:超大公區域自由漫步,實現家的所有暢想! No.3 地址/(寧波)海尚國際 面積/105㎡ 戶型/三室兩廳 套餐類型/1299 戶型方案: 設計亮點: ①主色選擇了灰白咖和奶茶色這類時尚流行的顏色。 ②客餐廳一體,硬包、格柵和巖板的組合添加更多輕奢調性。 ③收納型電視背景墻,以分色做出層次。 ④陽臺洗衣區連通客廳、兒臥,洄游動線令空間格外通透豁達。 詳情可見:清風朗月,歲歲溫柔 No.4 地址/(寧波)涌寧府 面積/160㎡ 戶型/復式 套餐類型/1699 戶型方案: 設計亮點: ①一樓公區域設計親子互動區,家人聯系情感更方便。 ②電視背景墻做懸浮隔斷,空間延伸感極佳。 ③用適度的留白豐盈藝術感受,淺凈底色放松情緒。 ④兒臥、書房和衛浴間均加入個性色彩,讓家的趣味感得到彰顯。 詳情可見:暗香浮動,且以優雅敬生活! No.5 地址/山水國際 面積/140㎡ 戶型/四室兩廳 套餐類型/半包 戶型方案:



























免費
免費申請戶型規劃
專屬設計師免費1對1全程服務
已經有3757人申請
24小時免費咨詢電話
400-8800-618
你家預算
108080元